![]() |

|
|
|||||||||||||||||||||||||
LYWTBZ污水提升預制泵站

污水提升預制泵站應用優勢:
生活污水已經慢慢的影響我們的生產生活,對于一些條件差的環境,污水的處理非常困難,因長期的滯留對于整體環境的影響還是很大的,沃特桑尼纖維纏繞預製泵站的出現,針對污水的處理進行了有利的發揮,這套裝置主要使用在離主管道低的環境,或是遠離主管道的一些地區,利用它的提升裝置,自動的將水位送到特定污水處理廠處理,不但方便了操作過程化,極大的利于環境的改變。

上海龍亞LYWTBZ污水提升預制泵站主要使用在市政工業地下室排水、地鐵排水、生活區、工廠等低於地面的一種污水處理裝置,因為這些場所的污水長期存留在一個地方,很容易引起環境的污染,嚴重的還影響人類的正常生活。利用好這套裝置,可以大大改善這種污水困擾的問題,緩解各種環境壓力,提高整體的生活水準。
LYWTBZ污水提升預制泵站的特點也非常多,它的結構很小,所以佔用的面積不大,還可以進行隱蔽安裝,不影響周圍環境的美觀,安全也比較容易保障,該裝置的抗腐蝕能力也很強,在應用過程中可以有效的提高使用壽命,基本上不用進行日常的維護,故障率很低。

LYWTBZ污水提升預制泵站的正確選型
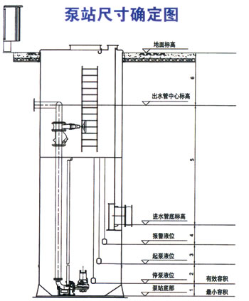
1、進水管、出水管的規格;
2、地面標高、出水管和進水管的標高;
3、設備流量及揚城;
4、部件配置表格中選好各部件的材質;
5、泵站配備水泵的數量【工作泵臺數、備用泵臺數】;
6、液壓傳感器的選擇【浮球開關、超聲波位傳感、壓力傳感】;
7、結構形式的泵站【普通型智能一體化泵站、智能維修間分體式泵站、特殊型聯動泵站】;
8、控制系統【自動液位控制(標準型),手動控制、遠程控制】;
9、各型號的泵站、地勘報告、平面圖電子版。

LYWTBZ污水提升預制泵站的安裝及運輸

1、運輸車輛按照實物的外形、尺寸和自重適配,使用出廠的專業托架吊裝Z車輛上,并用吊帶和繩進行固定(切勿用堅韌的鋼絲繩固定)安全運輸到現場。
2、開挖前按圖紙尺寸放線,測量地標高,依據ASTMD3839-89標準進行開挖放坡,特殊工況條件采取必要的安全措施進行安全防護及斷面處理,確保不塌方的前提進行吊裝混凝土基礎吊裝就位,如地下水位高的地區需做抗浮設計。
3、待基礎符合安裝條件時,將設備吊裝Z基礎平面上,調整好進出水管的方向進行連接(DY次回填土Z進水管標高)。
4、電氣及控制的安裝連接,并進行單擊調試、手動調試,Z終進行自動控制或遠程控制的聯動調試,合格后簽字確認。